西東京市富士町第12 全1棟 1号棟
■イオンハウジングの不動産仲介
■店舗はイオンモール東久留米の2階
■年中無休で営業中
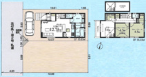
3LDK+カースペース
家族の顔が見えるリビングイン階段
ローンシミュレーションこの物件を購入した場合の、月々の支払い価格の一例です。借り入れを保証するものではございません。
- 返済期間
-
- 金利
-
- ボーナス時の増額(1回分)
-
- 借入金額:
-
- 頭金:
-

- 毎月の返済額:
(※元利均等方式 金利5.00%まで ※返済年数5~50年まで入力できます)
(※ボーナスは年2回で計算しています。1000万円まで入力できます)
(※物件購入時、その他諸費用が発生する場合がございます)
担当者のコメント イオンハウジング東久留米店

- 『イオンハウジング東久留米店』
イオンハウジング東久留米店は、地域に密着した不動産仲介業者です。
イオンモール株式会社が運営し、イオンの基本理念「すべてはお客さまのために」をこの不動産業界でも実現するため生まれました。
当店はイオンモール東久留米の2階に位置するため、お越しの際は大型無料駐車場をご利用いただけて、お買い物ついでやお立ち寄り後はすぐにお食事もできる、今までにない住まい探しのスタイルを確立してまいります。
従来の入りづらい不動産会社の敷居を下げ、どなたでも気軽にご相談できる環境を整えておりますので、まずは気楽にお越しください。
ご紹介できる物件を多数揃えて、年中無休でみなさまのお越しを心よりお待ち申し上げます。
ポイント・特徴
システムキッチン ユニットバス(換気暖房乾燥機付き) シャワートイレ シャワードレッサー 人感センサー付き玄関灯 TVモニター付きインターホン 防犯カメラ 全居室ペアガラス
物件概要
【新築一戸建】 物件番号:96903682 情報更新日:2026年01月16日 次回更新予定日:2026年01月30日| 所在地 | 東京都西東京市富士町1丁目 | ||
|---|---|---|---|
| 交通 | |||
| 間取り/詳細 |
3LDK/ LDK 15.7帖 1室/洋室 6.7帖 2室/洋室 4.5帖 1室 |
建物面積(坪数) | 80.18㎡(24.25坪) |
| 価格 | 4,680万円 | ||
| 駐車場/月額料金 | 有(1台)/0円 | ||
| 土地の敷金/保証金 | -/- | 借地料/借地期間 | -/- |
| 土地権利 | 所有権 | 土地面積(坪数) | 95.40㎡(28.85坪) |
| 傾斜地部分面積 | - | 路地状敷地 | - |
| 私道負担面積/セットバック | -/- | 高圧線下面積 | - |
| 地目/地勢 | 宅地/- | 接道状況 | 一方(東 私道 5.0m) |
| 建ぺい率/容積率 | 60%/200% | 用途地域 | 準住居 |
| 都市計画 | 市街化区域 | 種別/構造 | 新築一戸建/木造 |
| 階建 | 2階建 | 築年月(築年数) | 2025年 10月 (新築) |
| 総区画数/販売区画数 | 1区画/- | 向き | 南 |
| 現況 | 完成済み | その他の法令上の制限 | 高度地区/準防火地域 |
| 取引態様/引渡時期 | 仲介/相談 | 建築確認番号 | 第24UDI1W建11013号 |
| 物件番号 | 96903682 | 取引条件の有効期限 | 2026年01月30日 |
| 設備条件 |
|
||
| 備考 |
*図面と現況が異なる場合は現況を優先といたします。 |
||
| 取扱会社 |
|
||
※地図上に表示される物件の位置は付近住所に所在することを表すものであり、実際の物件所在地とは異なる場合がございます。


























